Description
MERCATORSTRAAT 79-2 AMSTERDAM
STARTERSWONING FOR A FIXED PRICE OF €395,000 K.K.
Looking for a beautiful starter home in Amsterdam? Then we have found the ideal apartment for you! This well maintained apartment with wooden frames and double glazing is located on the 2nd floor of an apartment complex. The ground lease is perpetual purchased so you never have to worry about your ground lease. And that for a fixed price of €395,000!
INDELING:
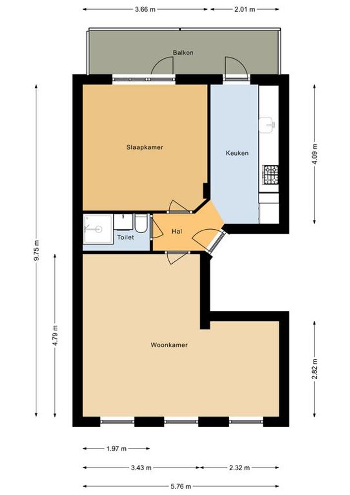
This cozy apartment has an area of 50 square meters and is perfect for someone looking for a cozy and perfectly laid out living space in the city.
Upon entering the stairwell you need to take the stairs up to the second floor to get to the apartment. Once arrived, you immediately enter the hall which provides access to the living room, bedroom, kitchen and bathroom. The living room is spacious and has plenty of light through the large windows on the street side. In addition, the living room has a separate dining area where you can enjoy your meals.
The kitchen is not wide but elongated so you have a good amount of space to cook. Through the balcony door you get access to the west-facing balcony where you can enjoy the beautiful view and fresh air. The bedroom is also adjacent to the west-facing balcony, which can be reached through French doors. The bedroom is large enough for a double bed and there is more than enough closet space.
ENVIRONMENT:
The Mercatorstraat is located in the popular neighborhood of De Baarsjes, known for its cozy atmosphere and diverse population. The neighborhood has been renovated in recent years and has a lot to offer in terms of restaurants, stores and activities.
Near the apartment there are several parks where you can walk or relax. The Erasmus Park is 1 minute walk. Here you can enjoy (hard) walking and offers plenty of space for children to play.
The Rembrandtpark is also just a 5-minute walk away. This park offers sports fields, a petting zoo and several playgrounds. At 10 minutes cycling distance is the Vondelpark, a beautiful park where you can picnic, walk or cycle.
Public transportation in the neighborhood is excellent. At 5 minutes walking distance is a bus stop with several bus lines that will take you to various parts of the city. The streetcar stop is also within walking distance. By streetcar you can be in the city center within minutes. There are also several metro stations nearby, such as Postjesweg station and Jan van Galenstraat station. These metro stations take you to other parts of the city quickly and easily.
As for supermarkets, there is a wide selection. Within walking distance are several supermarkets such as Albert Heijn, Lidl and Jumbo. Several convenience stores and specialty stores can also be found nearby. Furthermore, there are several sports and fitness facilities nearby, such as gym Basic Fit and swimming pool Mercator.
All in all, the Mercatorstraat neighborhood offers all the necessary facilities for a comfortable and convenient life.
GOOD TO KNOW:
- Living area: 50 sqm;
- Balcony of 7 sqm facing west;
- Gross volume of the house: 171 m³;
- Equipped with wooden window frames with double glazing;
- Leasehold perpetual;
- Energy label D, made in 2015, great opportunity for a better label at new registration;
- Monthly VvE contribution €109,23, -
- Parking permit is possible for €142,20 per 6 months;
- Completion / acceptance: on short notice.
In short; a beautiful apartment for a fixed price of €395.000,-!
Want to know more about this beautiful apartment on Mercatorstraat in Amsterdam? Then please contact us. We are happy to tell you more and plan a viewing with you.
STARTERSWONING FOR A FIXED PRICE OF €395,000 K.K.
Looking for a beautiful starter home in Amsterdam? Then we have found the ideal apartment for you! This well maintained apartment with wooden frames and double glazing is located on the 2nd floor of an apartment complex. The ground lease is perpetual purchased so you never have to worry about your ground lease. And that for a fixed price of €395,000!
INDELING:
This cozy apartment has an area of 50 square meters and is perfect for someone looking for a cozy and perfectly laid out living space in the city.
Upon entering the stairwell you need to take the stairs up to the second floor to get to the apartment. Once arrived, you immediately enter the hall which provides access to the living room, bedroom, kitchen and bathroom. The living room is spacious and has plenty of light through the large windows on the street side. In addition, the living room has a separate dining area where you can enjoy your meals.
The kitchen is not wide but elongated so you have a good amount of space to cook. Through the balcony door you get access to the west-facing balcony where you can enjoy the beautiful view and fresh air. The bedroom is also adjacent to the west-facing balcony, which can be reached through French doors. The bedroom is large enough for a double bed and there is more than enough closet space.
ENVIRONMENT:
The Mercatorstraat is located in the popular neighborhood of De Baarsjes, known for its cozy atmosphere and diverse population. The neighborhood has been renovated in recent years and has a lot to offer in terms of restaurants, stores and activities.
Near the apartment there are several parks where you can walk or relax. The Erasmus Park is 1 minute walk. Here you can enjoy (hard) walking and offers plenty of space for children to play.
The Rembrandtpark is also just a 5-minute walk away. This park offers sports fields, a petting zoo and several playgrounds. At 10 minutes cycling distance is the Vondelpark, a beautiful park where you can picnic, walk or cycle.
Public transportation in the neighborhood is excellent. At 5 minutes walking distance is a bus stop with several bus lines that will take you to various parts of the city. The streetcar stop is also within walking distance. By streetcar you can be in the city center within minutes. There are also several metro stations nearby, such as Postjesweg station and Jan van Galenstraat station. These metro stations take you to other parts of the city quickly and easily.
As for supermarkets, there is a wide selection. Within walking distance are several supermarkets such as Albert Heijn, Lidl and Jumbo. Several convenience stores and specialty stores can also be found nearby. Furthermore, there are several sports and fitness facilities nearby, such as gym Basic Fit and swimming pool Mercator.
All in all, the Mercatorstraat neighborhood offers all the necessary facilities for a comfortable and convenient life.
GOOD TO KNOW:
- Living area: 50 sqm;
- Balcony of 7 sqm facing west;
- Gross volume of the house: 171 m³;
- Equipped with wooden window frames with double glazing;
- Leasehold perpetual;
- Energy label D, made in 2015, great opportunity for a better label at new registration;
- Monthly VvE contribution €109,23, -
- Parking permit is possible for €142,20 per 6 months;
- Completion / acceptance: on short notice.
In short; a beautiful apartment for a fixed price of €395.000,-!
Want to know more about this beautiful apartment on Mercatorstraat in Amsterdam? Then please contact us. We are happy to tell you more and plan a viewing with you.




















